Whelan Acreage B

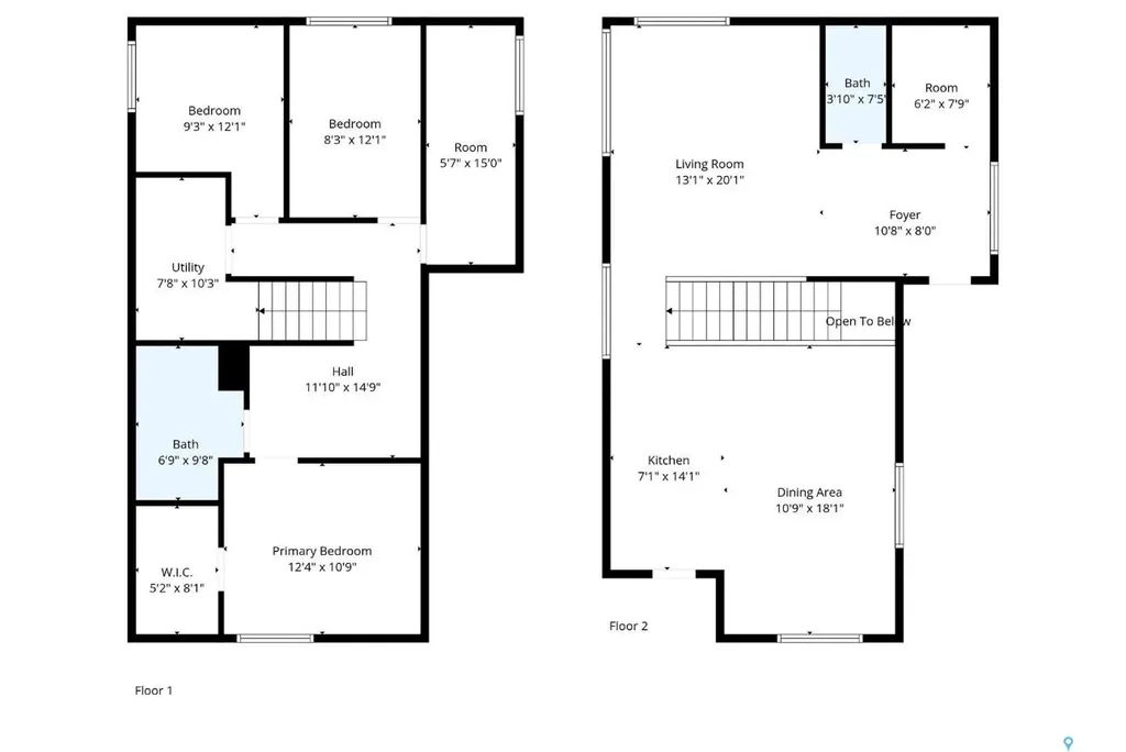
What an Opportunity! Just minutes west of Saskatoon-enjoy peaceful acreage living with city convenience! This newly constructed property sits on 3 acres and offers just over 1,700 sq. ft. of developed space (856 sq. ft. on the main level), featuring 4 beds, two baths, a fully developed basement, and an impressive heated triple detached garage (36' wide with a double overhead door). The home welcomes you home with a charming covered front porch and a functional large foyer complete with a built-in bench and a separate boot room area with floor-to-ceiling wardrobes. The open-concept main floor connects a spacious living room, dining area, and kitchen. The kitchen is a standout, showcasing an abundance of custom lacquer cabinetry, full-height pantry storage, quartz countertops, stainless steel appliances including a microwave hood fan, subway tile backsplash, and an oversized island ideal for large gatherings. The adjacent dining room easily accommodates a large table for the entire family! A convenient two-piece bath completes the main level. An open staircase leads to the bright lower level, which offers four bedrooms (one smaller-ideal as a nursery, office, or den), a spacious family-style 4-piece bathroom, and a large walk-in closet in the primary bedroom. Outside, the detached 36' heated and insulated garage is a dream setup-complete with a workshop area and a double overhead door. The yard is unlandscaped but cleared and ready for your personal design-bring your garden plans and your green thumb. Property is built by a reputable experience Saskatoon builder.
Listed by Dawn Foord of Coldwell Banker Signature

Listing Tools (detailViewNewGen)

Property Details of Rural Address

Property Details

Interior Features

Utilities and Appliances

Other Details

Map Location

 "Based on information submitted to Saskatchewan REALTORS® Association as of November 16, 2025 11:45 PM EST. All data is deemed reliable but is not guaranteed accurate by the MLS. All information should be independently reviewed and verified for accuracy. IDX information is provided exclusively for consumers’ personal, noncommercial use and may not be used for any purpose other than to identify prospective properties consumers may be interested in purchasing."

Hi there! How can we help you?

Contact us using the form below or give us a call.

Send Us A Message:

I agree to receive marketing and customer service calls and text messages from Real Estate Centre. To opt out, you can reply 'stop' at any time or click the unsubscribe link in the emails. Consent is not a condition of purchase. Msg/data rates may apply. Msg frequency varies. Privacy Policy.

Do not fill in this field:

This site is protected by reCAPTCHA and the Google Privacy Policy and Terms of Service apply.

Hi there! How can we help you?

Contact us using the form below or give us a call.

Send Us A Message:

Do not fill in this field:

This site is protected by reCAPTCHA and the Google Privacy Policy and Terms of Service apply.

Hi there! How can we help you?

Contact us using the form below or give us a call.

Send Us A Message:

Do not fill in this field:

This site is protected by reCAPTCHA and the Google Privacy Policy and Terms of Service apply.

Do not fill in this field:

This site is protected by reCAPTCHA and the Google Privacy Policy and Terms of Service apply.

Do not fill in this field:

This site is protected by reCAPTCHA and the Google Privacy Policy and Terms of Service apply.

Do not fill in this field:

This site is protected by reCAPTCHA and the Google Privacy Policy and Terms of Service apply.

$

Do not fill in this field:

This site is protected by reCAPTCHA and the Google Privacy Policy and Terms of Service apply.